Apartament Ne Shitje 1+1 Ne Paskuqan (ID B110562) Tirane
6 hours ago Pasuri të paluajtshme Kamez/Paskuqan 6 pamje Referenca: 819468 600 €
Vend: Kamez/Paskuqan
Çmim: 68 600 €
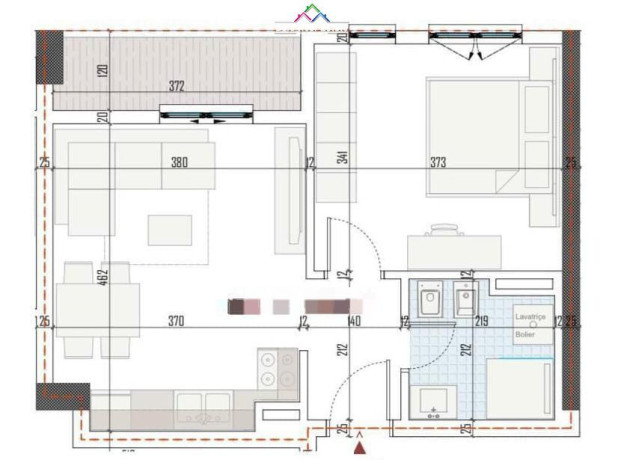
Ne Paskuqan, Rruga Lidhja e Prizrenit, ne kompleksin Ring Side, shitet apartament 1+1, me siperfaqe totale 54.87 m2 bruto dhe siperfaqe neto 47.51 m2 NE PROCES HIPOTEKIMI, kati i 4, pallat i ri, me ashensor, ne ndertim perfundon ne fund te 2027. G.T.
Tarife sherbimi agjensie 1% e vleres se shitjes
Shitet 68.600 euro
detaje shtese
Lloji i nderteses
Apartament
Hyrja
1+1
Gjendja
Bosh pa mobilje
Siperfaqe
54
Kati
4













